Extra tijdelijke huisvesting voor De Meerwaarde

Ons prachtige schoolgebouw is door de stijging van het leerlingenaantal de afgelopen jaren te klein geworden. Terwijl het gebouw was bedoeld voor 1750 leerlingen hebben we nu meer dan 2100 leerlingen. We zijn daarom al geruime tijd met de gemeente Barneveld in overleg. Het resultaat is dat we een zogenaamde ‘gemeentelijke beschikking’ hebben gekregen. Daaruit blijkt dat we recht hebben op zo’n 2900m2 extra onderwijsruimte. Medio 2017 is de tijdelijke huisvesting bij het schoolgebouw aan de Rietberglaan gerealiseerd en in gebruik genomen.

Onderzoek naar huisvestingsmogelijkheden: planvorming en plek

Nadat we de beschikking hebben ontvangen zijn we met de gemeente gaan onderzoeken hoe en waar die aanvullende huisvestingsmogelijkheden kan worden gerealiseerd. Het gaat dan om huisvesting voor het VMBO en het Praktijkonderwijs (en dus niet over huisvesting voor het MBO in Barneveld). Het onderzoek ging zowel over de plannen (tijdelijk en/of permanent) als over de plek (elders en/of op eigen terrein). Wat de plannen betreft, willen we een derde deel van de ons toegekende extra ruimte (850m2) gebruiken voor een tijdelijke oplossing. Wat overblijft is voldoende ruimte om - zo nodig - over twee of drie jaar permanent in te vullen. We nemen die periode de tijd om daar samen met de teams en met externe partners (bedrijven/instellingen) goede plannen voor te maken. Daarover hieronder meer. Qua plek bleef alleen de optie van realisatie op eigen terrein over. Ook daarover verderop meer.

Korte termijn: noodoplossing noodzakelijk

Voor de korte termijn is er tijdsdruk omdat onder andere een aantal groepen (PrO) niet langer op de MBO-locatie aan de Zonnebloemstraat kan worden gehuisvest. Omdat we daardoor na de zomervakantie al lokalen tekort hebben zijn we direct concrete plannen gaan maken voor tijdelijke huisvesting. We hebben na een vooronderzoek onlangs een vergunning aangevraagd. Zodra we die vergunning hebben ontvangen kunnen we met de realisatie beginnen. Het budget voor de tijdelijke nieuwbouw komt (voornamelijk) van de gemeente. Voor ongeveer de helft van de gemeentelijke bijdrage is nog aanvullende besluitvorming nodig in de gemeenteraad van juni (kadernota 2018). Als we de nieuwe tijdelijke huisvesting op tijd voor het nieuwe schoolseizoen klaar willen hebben, is het qua planning niet mogelijk om op die besluitvorming te wachten. Daarom nemen we nu een volgens ons verantwoord financieel risico. Dat doen we in het vertrouwen dat we een verstandige keuze maken omdat we heel verantwoord inzetten op toekomstgericht onderwijs, op samenwerking en niet meer willen bouwen dan noodzakelijk is. Daarmee blijft ons eigen budget voor onderwijs zoveel als mogelijk beschikbaar voor onderwijs en maken we tegelijkertijd zo min mogelijk gebruik van het gemeenschapsgeld van de gemeente Barneveld.

Langere termijn: visie in ontwikkeling

Want voor de langere termijn zijn we een traject gestart om met bedrijfsleven en maatschappelijke instellingen de mogelijkheden te verkennen om de samenwerking rondom leren te intensiveren. Een deel van die intensivering kan opleveren dat we - nog meer dan nu al gebeurd - onderwijs vormgeven samen met en ook bij bedrijven en instellingen. Dat levert allereerst winst en praktijkinspiratie op voor onze leerlingen. En daarnaast bevordert het ook nog eens de samenwerking tussen De Meerwaarde en de werkvelden. Waardoor weer nieuwe kansen kunnen ontstaan.

Van de intensievere samenwerking kennen we nu al enkele mooie voorbeelden. Die zijn deels uit de ruimtenood geboren. In onze visieontwikkeling willen we verkennen of we daar niet gericht op kunnen voortborduren. Met de bijeenkomst ‘Samen Broeden’ met bedrijven en instellingen waar we u eerder over geïnformeerd hebben is daarmee in januari al een start gemaakt. Op onze website vindt u over de samenwerking met bedrijven en instellingen meer praktijkvoorbeelden en informatie (klik hier voor meer informatie). Wilt u weten hoe het werkt in de praktijk? Kijkt u daarvoor vooral ook naar het filmpje onderaan de internetpagina! In de komende tijd willen we verkennen hoever we samen met bedrijven en instellingen kunnen komen om onderwijs nog intensiever op deze manier vorm te geven.

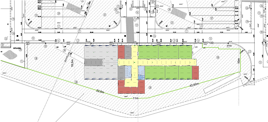
Hoe ziet de tijdelijke huisvesting eruit?

De tijdelijke huisvesting bestaat uit koppelbare units. Deze moeten voldoen aan het meest recente bouwbesluit. De lokalen moeten ook hetzelfde voorzieningenniveau hebben als in het huidige gebouw. In het gebouw zijn in totaal acht lokalen. Daarbij gaat het om twee technieklokalen en daarnaast drie grote en drie kleine theorielokalen. Verder zijn er enkele kleine werk- en overlegruimten, technische ruimten en de noodzakelijke sanitaire groepen.

Qua situering is de tijdelijke huisvesting in de vroegere rokerstuin naast de Nieuw Vellerseweg. Uit het vooronderzoek is gebleken dat die plek overblijft.

Bij de opstelling proberen we zoveel mogelijk rekening te houden met de omwonenden. We hebben geprobeerd uit zoveel mogelijk zichtlijnen te blijven. Ook zijn de uitgangen aan de zijde van het huidige schoolgebouw. In overleg met de omwonenden is er bepaald over thema's zoals de kleurstelling.

Wie maakt er gebruik van?

De tijdelijke huisvesting wordt ingezet als ‘overlooplocatie’. Het is de bedoeling dat de groepen zoveel mogelijk vanuit het principe van kleinscholigheid hun eigen thuisbasis in het huidige gebouw houden. Welke groepen er precies gebruik maken is afhankelijk van de roostering .

Communicatie

We houden ouder(s)/verzorger(s) van onze leerlingen via MEERweten op de hoogte van ontwikkelingen rondom de tijdelijke huisvesting.

We hebben van het onderzoek naar de huisvestingsplannen ook melding gemaakt op de wijkbijeenkomst ‘Verbinding en veiligheid’ op 7 maart jl.. Deze bijeenkomst mochten we samen met het wijkplatform Zuid III en Veller op De Meerwaarde organiseren.

Verder zijn we daags nadat bekend was dat we in principe ruimte zouden kunnen krijgen voor deze planvorming op eigen terrein in overleg gegaan met direct omwonenden. We begrijpen heel goed dat deze extra tijdelijke huisvesting voor de omwonenden – terwijl we tegelijkertijd begrip ontmoeten voor de noodzaak – echt een extra belasting is. Om de planvorming voor zover als dat kan ook met hen af te stemmen proberen we zoveel als mogelijk samen met de omwonenden op te trekken en hen zo goed mogelijk te informeren en waar mogelijk aan wensen tegemoet te komen. We hebben ondertussen twee keer een bijeenkomst gehad en afspraken gemaakt over het vervolg.

MBO locatie De Meerwaarde

Deze informatie gaat over de huisvesting voor het VMBO en PrO aan de Rietberglaan. Het gaat niet over MBO locatie De Meerwaarde aan de Zonnebloemstraat. Voor het volgende studiejaar 2017/2018 is door de drie samenwerkende partners MBO Amersfoort, ROC A12 en De Meerwaarde de inschatting gemaakt dat we met de huidige locatie aan de Zonnebloemstraat voor het MBO in Barneveld qua omvang nog uit de voeten kunnen. Voor daarna wordt onder regie van de drie samenwerkende onderwijspartners een apart huisvestingsspoor gevolgd. Daarbij is het nadrukkelijk geen optie dat het MBO in Barneveld ook aan de Rietberglaan wordt gevestigd. Dit is zo ook met omwonenden afgestemd.